要進行射箭,需要具備三個場所:射場(射屋)、矢道、的場(垜)。將這三者的設施綜合起來,稱之為弓道場,或簡稱弓場。弓道場能如此完備,其實是相當近代的事。古時候,人們只是在戶外築起「垜」,掛上靶,就進行射箭了。
今天想跟各位分享由建築師 桐山均一於1940年刊載至《弓道講座 第十九卷》內的「弓道場」一文內容,來一探弓道場設置時的各種細節。
備注:1 尺≈0.303 m 1 間≈1.82 m
射場
射場是射箭過程中最為重要的場所。因為所有的動作都在此進行,所以在設計上必須特別謹慎,萬不可草率。
【位置】
由於日照原因,射場以朝南設置最為理想;若受地形限制不得已,則朝東南方亦可。但絕對不可朝西方。
【大小】
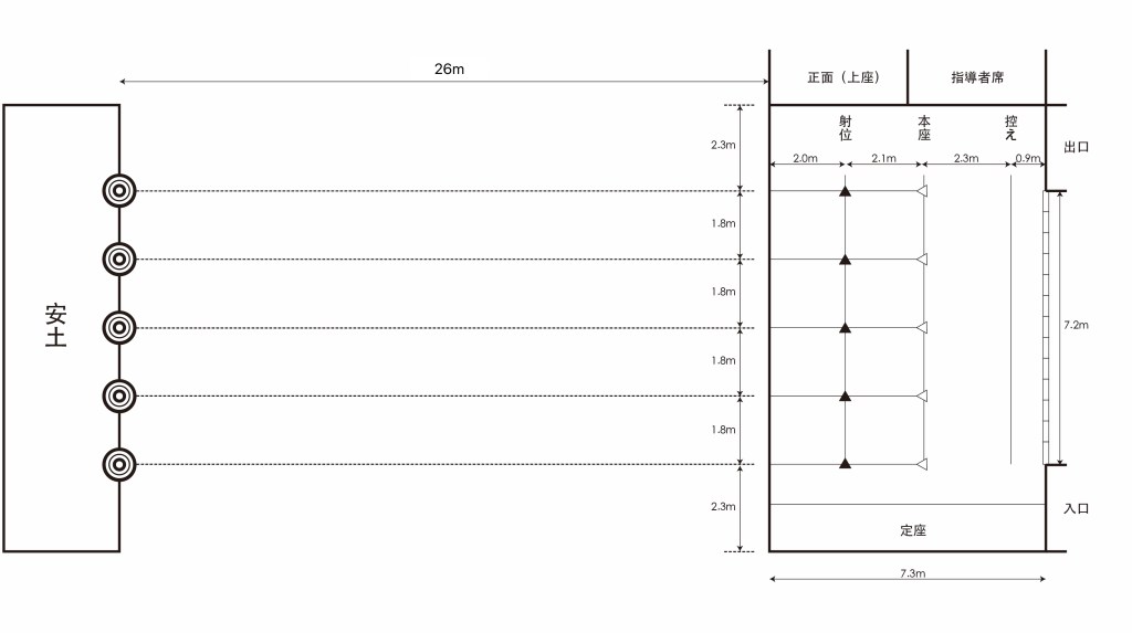
射場的寬度取決於同時使用的人數。若是學校,往往同時有許多人使用,就必須加大寬度;若是區道場,即使使用者眾多,基本也不會同時行射,因此寬度可依實際情況調整即可。至於深度,射手站立的位置往前需三尺(0.909m)以上,往後則須十二尺(3.636m)以上便足夠。
【地板】
射場的地板應鋪木板,方向以橫鋪為佳。面向矢道的一側應完全開放,建具則使用拉門。
【天花板】
天花板高度須足以避免弓舉高時受阻,大致十三尺(3.939m)為宜。結構可採方格天花板(格天井)或平面天花板(一枚板天井),如此一來,弓弦的回音會特別清亮。
【待機區(控席;休息區)】
待機區設於射場後方為最佳,若能比射場略高則更為理想。以榻榻米鋪設,冬季可設置暖爐或火爐,既實用,也增添些許風雅。
【師範席】
多數情況下設於射手正前方或面向靶的方向,能清楚觀察射場與的場(垜;安土)全貌。此處若加設地台與欄杆,不僅能使觀察更方便,亦能營造出莊嚴肅穆的氛圍。
【巻藁室】
此區域乃為初學練習,以及在面向的場(垜;安土)前進行預備練習之用,因此需設置於射場附近。若因面積限制,無法特別設置巻藁室,則亦可於射場內一隅放置巻藁。無論如何,射向巻藁之際,為了檢視姿勢,在巻藁前設置鏡子更能增添其便利性。
【道具室】
為存放弓、箭及其他器具之場所。弓須至於高處,弓下方可立置箭筒;至於弽袋,則另設有帶門的櫥櫃以收納之。(現代來說,Kyo桑會選擇電子防潮箱)
【設施】
必要設施包括:神棚、弓立、矢立、巻藁、全身鏡等。
矢道
射場與的場(垜;安土)之間稱為矢道,通常鋪設草坪。有時也會以細砂鋪地,但因箭矢擦地時容易受損,因此即使較為費事,仍以鋪設草坪為理想。
矢道南側多築小土牆或植樹,以示與他處區別。矢道長度,自射場門檻(外緣)至靶的距離常見約為十五間(27.27m)。如此一來,射手於的場門檻(外緣)內約三尺(0.909m)處射箭,實際射距便為十五間半(28.18m)。(門檻內距離為最小距離,而非絕對距離)
在矢道途中,為防止箭矢偏離而產生危險,有時設置「矢除板」。於距地七、八尺至十尺(3.03m)左右之高度,依射場開口的寬度,設置三尺(0.909m)高的壁板,位置則置於距射位約六、七間(10.91~12.73m)處。
的場
【垜】
「垜」亦可書作「安土」。上古時代,多張設草堆或布作為阻擋箭矢用;至後世,方改以築土而成。其高度約三尺九寸(1.300m),橫寬與射場寬度相同,以土堆築而成。其前方再覆以川砂與木屑混合物,約一尺(0.303m)厚。簡便之例,僅以榻榻米豎立,於其前置靶,以為垜的代用。
【建物】
近代的垜,多設置完整的建物與屋頂,以防被雨水沖蝕流失。其方向因與射場相對,自然而然多為北向或西北向。建物屋頂前緣可懸掛幕布等;屋後則以混凝土、磚或木料築成牆體結構。此外,屋外一隅必須設置看的小屋。
另可利用部分空間設置「的入れ」(靶收納空間),並於看的小屋與射場之間設置信號用電鈴,則尤為便利。
【冬季設備】
因的場(垜;安土)為北向或西北向,日照不足,冬季常見垜面結凍。在有此顧慮之地,宜於垜表覆以稻草,以作防凍之用。使用時,僅將靶位之草揭起掛靶即可。
夜間照明
【射場照明】
隨著近年弓道之興盛,射箭不僅於日間,夜間射的亦漸增。為此,射場宜採用夜間照明,並須使全場均勻明亮,故以間接照明為理想。其安置位置,宜接近天井,以免妨礙舉弓動作。
【矢道照明】
於射場上部設置反射式照明器,朝向的場照射,則矢道明亮,可清晰辨認箭之飛行軌跡,使夜間射箭之不快感得以消除。故照度宜越高越佳。
【的場照明】
光源不可直接置於靶之正上方,而宜自前方上部以反射光照射為上策。
參考文獻
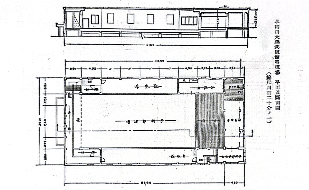
弓道場(1940)。桐山均一。《弓道講座 第十九卷》
Kyo桑的備註
- 在弓道場的左側矢道(取箭道)上方安設防曬/防雨棚;
- 「看的小屋(Kanteki-koya)」內安裝供水設備;
- 安土兩側「看的小屋」內設有裝設簾幕的道具;
- 審判台天花板避免過低,容易與弓具碰撞;
- 道場兩側安裝窗戶通風;
- 道場、安土照明亮度足夠;
- 地暖設備;
- 射位與靶平面正好28m ± 2cm;
- 道場內部走廊高度至少有3.5m或更高;
- 入口於下座,審判台或神龕等在上座(面對安土的右側)(如下圖);
- 雖一般日本常見弓道場以百葉窗或鐵捲門來進行防盜、防塵等維護,
但Kyo桑建議使用折疊式不鏽鋼門(或木門),以防止長年使用下生鏽; - 設有神龕或相應物;
- 至少有兩靶位,若有三靶位以上則完美;
- 鄰近距離居住處;
- 愛護道場的人們;

延伸閱讀
各弓道場注意事項
「道場」的意義
弓道場的神龕(象徵物)方位有什麼講究?
一直以來默默守護著我們練習的「弓道場」




分類:弓道場